Last day of Marine Rescue Broken Bay in old Base Signals Exciting Construction about to commence for new Base at Bayview + MRNSW says 'Stay Safe around whales during this migration season'

Past Unit Commander Victor Lawrence with current Unit Commander Jimmy Arteaga packing up the old Base building, May 22, 2022. Photo: Michael Mannington OAM, Community Photography
At the official commissioning of the Marine Rescue Broken Bay New BB30 - The Michael Seale - Pittwater MP Rob Stokes added further celebration to the Naming Ceremony when he announced 100 thousand dollars would be provided to upgrade the club rooms and base for the Marine Rescue Broken Bay unit through the state government's Community Building Partnerships.
At its April 2022 General Meeting the Council voted to accept the tender of Grindley Interiors Pty Ltd for RFT 2021/233 – Construction Services for Marine Rescue Rowland Reserve Building Replacement for the sum of $988,563.43 excluding GST. The building will be constructed with sustainable materials where feasible, ensuring compliance with the Building Code Part J requirements.
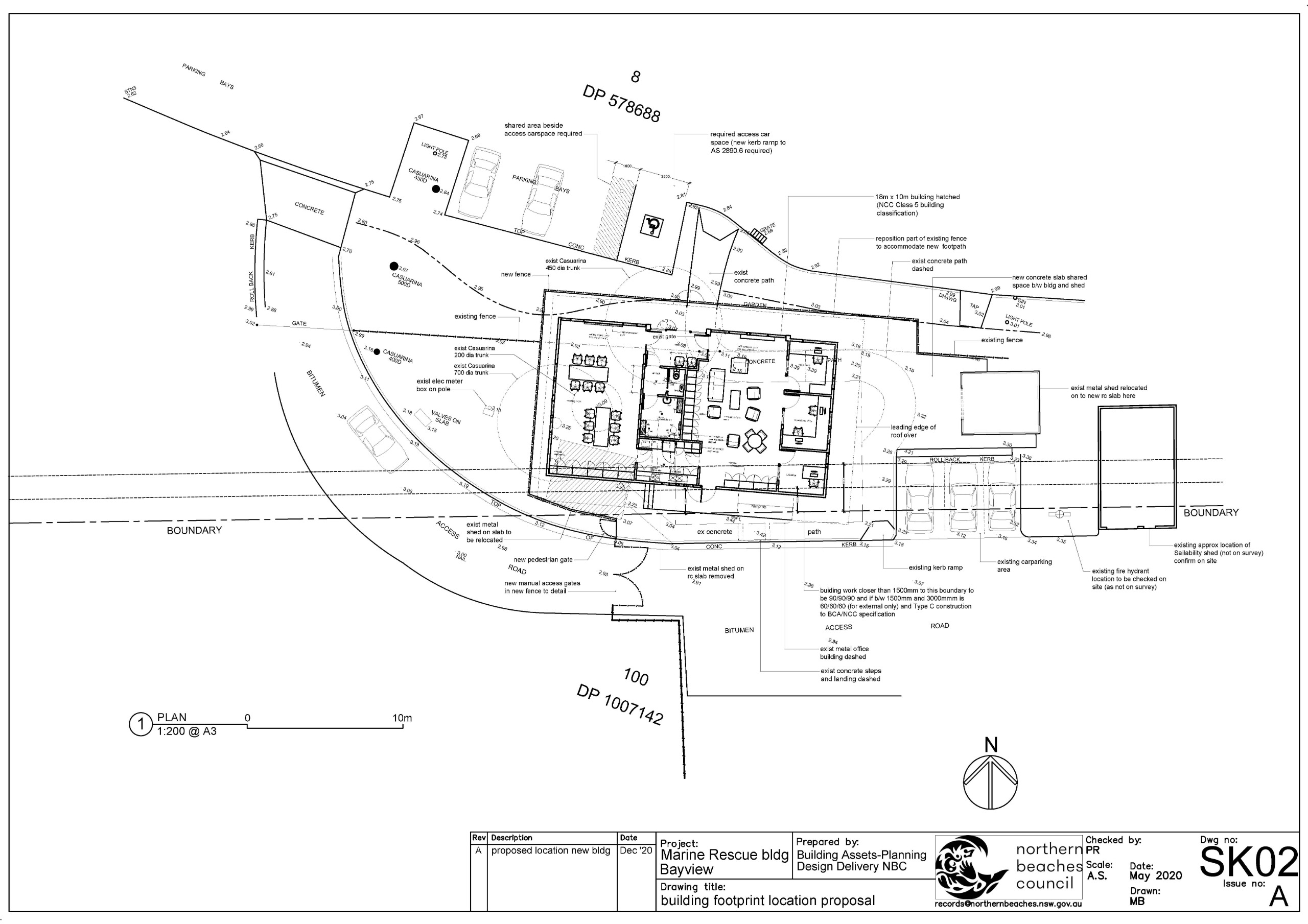
Council stated on Friday, May 27; Marine Rescue currently occupy a 20-year-old repurposed Council demountable which is in need of replacement. Council, with funding support from Marine Rescue NSW and the NSW Government, is removing the old demountable and constructing a new purpose-built building for their use. This building will be located in the same location, being a slightly larger single level building. To ensure the requirements for Emergency Operations and accessibility legislation are met, the design will require a slight increase of floor space from 116sqm to 180sqm. Please note that it will remain a single level building.
The new operations base is needed due to the significant boating increase that has occurred on Pittwater which is expected to keep growing into the future. The project was strongly supported by the community during the engagement process.
Marine Rescue has currently moved to a temporary base in the reserve. The works start June 6th and will take 5 months weather depending, ready for the busy Summer period.
The new design will continue to provide Sailability with shed and storage space. The President of Pittwater Sailability has been involved and informed to ensure the proposal will not impact their shed or usage of the depot.
Native species and other suitable plants will be incorporated into any gardens altered as part of the project.
Mayor Michael Regan said:
“It’s great to see this project commence, providing a modern updated home base for this important service which will cater for their needs now and into the future.”

3D drawing of new unit base for Marine Rescue Broken Bay and (below) site scaled drawing. Plans/drawings courtesy Northern Beaches Council

Pittwater Online spoke to MRBB Unit Commander Jimmy Arteaga about this great new development for the Unit, as well as local and visiting boaters.
The April Council meeting selected the tender for the construction of the new Unit Base at Bayview, which, combined with that allocated by the NSW community Building fund and MRNSW, means works are just about to commence. Exciting times Jimmy?
Yes – although it has been a hard slog in the background across many years to get the approvals and this opportunity, so this is a fantastic result for Marine Rescue Broken Bay.
Where will Marine Rescue Broken Bay be based while the demolition of the old unit building and construction of the new takes place?
The Broken Bay Unit will be housed in demountables in the Rowland Reserve carpark during the construction phase. With thanks, The Northern beaches Council will be installing containers for our use. We’ll move our operations out of the Base to these containers to enable us to operate from them for around 8 months, which currently is the time scheduled for the build.
The Marine Rescue Broken Bay Unit teaches radio courses as well as offers other training for boaters during the cooler months – will operating out of a demountable present challenges to proceed with those?
Absolutely. Generally Winter time is when we look into bringing in more members and training, and we absolutely schedule the courses in greater number then, but because of the lack of space we will be reviewing this during this period.
We will try and engage with our partners and supporting organisations to see if we can use their facilities where possible and when they can make these available for us to offer those courses for the public, but, as this can be an imposition on them, we’ll have to think of other strategies as well.
And Marine Rescue Broken Bay has a new boat on the way?
That is correct. Our current 6.5m Gemini RHIB has reached its end of life, and it’s possibly had a hard life, it’s our ‘go-to’ boat that we have used for fast response; it’s also been used in flood rescues up at Taree and again this year at Wiseman’s Ferry, and it’s completed many trips to Sydney Harbour as well on top of the frequent use around the waters of Pittwater and Broken Bay. Consequently, it has reached its end of life and we’re needing to get a replacement.
The new boat will be a split console Naiad RHIB, a little bit smaller than our current vessel at 7.5metres, and the first 7.5 vessel in the Marine Rescue fleet in this configuration. At this stage it will have twin 175 horsepower engines. It has been designed to have a drop-down bow as one of the learnings we found in helping people off beaches or off rocks with the Gemini, it was difficult to get ‘not so nimble’ people into the Gemini because of the high sides, therefore the drop-down bow on the new boat will make it a lot easier for people to get in and out of the new boat removing any potential injury.
When will you take delivery of the new vessel?
The build is nearly complete with the electrical fit-out currently underway. The new vessel is expected to take its maiden voyage on Monday, May 30th, to be followed by sea trials late May up at Yamba (where it is being built), before it heads to the waters of the Pittwater in mid-June. The boat is scheduled to enter active service in the second half of July.
We had been expecting the delivery sooner but due to floods and Covid, we’ll see it in use in the second month of Winter.

New MRBB vessel - build currently being finalised. Photo: courtesy MRNSW
Marine Rescue Broken Bay vessels are traditionally named after outstanding members of the Unit, can you hint yet who this one be named to honour, or do we have to wait until the unveiling and commissioning ceremony?
At the moment, we’ll be holding out announcing the name of the vessel, but we have sought feedback from our members for nominations on the name. We’ll make that formal announcement just before we officially launch the vessel.
Pittwater MP Rob Stokes, NSW Minister for Infrastructure, Cities and Active Transport, who visited MRBB on their last pack up day, Sunday May 22nd, said “This is one of our community’s most important volunteer organisations and the service they provide is superb.
“There is such an incredible depth of knowledge and experience amongst the unit’s volunteers – meaning our local boaters are in excellent hands.
“Marine Rescue is one of those services you never want to call upon – but it’s great to know they’re available when necessary.
“It’s been fantastic to see progressive upgrades introduced to the Unit’s equipment and wharf infrastructure over recent years – but the new base will be a huge boost for our community.''

Marine Rescue Broken Bay Unit Members and visiting Hon. Rob Stokes, MP for Pittwater, Sunday May 22nd, 2022. Photo: Michael Mannington OAM, Community Photography.

Council moves temporary base into Bayview for MRBB use over the next 5 months. Photo: courtesy Jimmy Arteaga

Temporary base installed. Photo: Michael Mannington OAM

Inside Temporary base. Photo: Michael Mannington OAM
______________________________________________________________________________________________________________
In January 2022 Marine Rescue New South Wales units responded to 707 emergencies, down just a little on the 810 from the previous year and well up on the 387 responded to in 2020 when Covid restrictions meant less people were out and about.
Marine Rescue Broken Bay also had a boat deployed to the Sydney Harbour Fireworks display on New Year's Eve. Six crews provided on-water support, from MR Middle Harbour, MR Port Jackson, MR Broken Bay, MR Norah Head, MR Cottage Point and MR Botany Port Hacking. In addition to keeping spectator craft out of the fireworks exclusion zone, crews were kept busy helping vessels who had broken down and required assistance.

Marine Rescue Broken Bay 30 ready for New Year’s Eve duty. Skipper: Chris Guy (centre), Crew: Julie Derry (right), Jay Khan (left) and trainee Craig Brown (far left).
The Marine Rescue Broken Bay Unit has been serving the public on our waterways since the 1930's. The original unit was formed as part of the Volunteer Coastal Patrol, the oldest voluntary sea rescue organisation in Australia, which evolved from discussions between Captain Maurice Blackwood DSO RN and Messrs. H W G Nobbs and W Giles. These men worked on the idea and submitted it to friend and colleague, CMDR Rupert Long OBE, Director of Naval Intelligence.
The concept of using experienced merchantmen and yachtsmen as an auxiliary service to the Navy and Government maritime authorities was first used in Britain at the turn of the century. Later in both Great Wars, British servicemen who had marine or yachting experience were taken out of the ranks and placed in small ship service. The use of small ships in both peace and war had been invaluable. With Australia’s 12,000 nautical mile coastline, the four men believed that an organisation of volunteer yachtsmen, many of whom were experienced merchant and naval seamen, would be extremely beneficial.
Commander Long recommended to the Naval Board that an organisation, to be called the Volunteer Coastal Patrol, be established. The Naval Board agreed to the concept. The Volunteer Coastal Patrol was started on 27th March, 1937. At the Navy’s suggestion and supported by CMDR Long, Maurice Blackwood DSO RN was the first Commanding Officer with Harold Nobbs and Bill Giles as the senior officers.
The original aims and objectives were issued in a handbook:
- To encourage the volunteer service of yachtsmen and others interested in seamanship to undergo a course of training so that, in the event of a national emergency, the service would be of value to the Royal Australian Navy or the military forces as may be required.
- To place at the disposal of the Movement their vessels (provided that they are of suitable type) for use in training, as may be needed, but always in charge of the owner-skipper.
- The course of training will be that laid down by the Senior Officer of the Movement and meeting with the approval of the Naval authorities if required.
- The headquarters of the Movement will be at any place to be decided by the Senior Officers.
It is interesting to note that the Patrol was referred to as ‘A movement’ in these early days. An organisational structure, discipline, ranks and bases were set out in the handbook:
- The Movement shall be under the direction and absolute control of the Senior Officers, who will be responsible for carrying out the administration of the rules governing the unit as set down, assisted by a staff appointed by the Senior Officers as are required.
- The personnel shall consist of: Boat owners (rank, Skipper) Flotilla Skippers, Divisional Skippers, Mates, Wireless Mates holding WIT licences
- Or any other rank for specialists that may be decided necessary by their Senior Officers. The Units will be formed in the various ports as opportunities occur, and in each port a Divisional Skipper will be appointed and, on attaining Flotilla strength of sixteen ships (4 Divisions), a Flotilla Skipper will take command.
- All applications for enrolment shall be made on the forms available and be subjected to inspection or examination by the examiner as required by the Movement.
Training was taken from Admiralty courses, enabling members to progress to higher ranks. Members would donate the use of their boats to the Coastal Patrol. The instructors in those early days were Naval personnel who donated their off-duty hours to train the members.
The moment war was declared in 1939, the Navy requested Captain Blackwood to establish the Patrol’s attitude to serving in war. Captain Blackwood called a meeting at the Navy League, High Street, Neutral Bay, at which the fifty members of the Patrol reaffirmed their desire to serve their country as a volunteer service.
Then followed a period of rapid expansion during which time, Captain Blackwood retired as CO to become a Commodore of Convoys, he was followed by H W G Nobbs with the altered title of Officer Commanding.
The first task in 1939 allotted to Coastal Patrol was to establish a security watch on the Hawkesbury River Rail Bridge.
Training was stepped up with the inclusion of courses from the Maritime Services Board and Police Department on fire fighting, air raids, oil spillage in the Harbour and the general security of port facilities.
In November 1939, one hundred members moved to The Basin, Pittwater, Broken Bay for eight days of intensive training on signals, aircraft recognition, boat handling and security patrol duty.
The camp was inspected by General Sturdee (Eastern Command), Brigadier-General J J Murray, Colonel Adrian and Captain Nobbs, (father of the OC of the Coastal Patrol).


(1939). December 23, Pix, Volume 4, No. 26, pages 8-9. Retrieved from http://nla.gov.au/nla.obj-467076244
As a result of this closer co-operation with the Army, Patrol boats were used to establish more accurate military maps of the coastline, with particular attention to beach defences.
With peace and the return to recreational boating and the VCP turned its focus to boater education and civilian search and rescue. The first Patrol-owned boat was an ex-Naval cutter, Juno, which began service in 1947, primarily as a training vessel for new recruits.
Various donated, sponsored and purchased boats were acquired, including four Maritime Services Board pilot boats and later, self-righting Waveney and Arun lifeboats imported from Britain. Vessel and radio training progressively became more formalised and operations extended along the coastline, with 25 NSW divisions eventually providing a volunteer rescue service and marine radio watch from Cape Byron to Eden.
The Broken Bay Division was part of the original foundation organisation and was administered as part of the Sydney region command. In 1947, a separate division was set up known as the Broken Bay Division, with Skipper Ray Weingott as its first Divisional Commander, and was operated directly from the members' own private vessels.
Since then, the Division has operated from bases at Church Point, Royal Prince Alfred Yacht Club and Royal Motor Yacht Club. The Division moved to the Royal Motor Yacht Club, in 1992, who donated the use of two rooms as a Base. They, also, generously provided berthing facilities for rescue vessels along with other assistance. On 12th March, 2005, the Division moved to its own premises, acquired with the much-appreciated assistance of the Pittwater Council, within the grounds of the Bayview Boat Ramp. The wheelchair-friendly Base boasted a radio room, administration office, two bunk rooms, galley, and a large education/meeting room.
In 1974 the Queen granted approval for the VCP to add the prefix “Royal” to its title. Recognising its funding and recruitment limitations, the RVCP keenly supported the transition to MRNSW. In 2019 only a South Australian presence remains, with two boat bases and seven radio bases.
By 1990 Operational Divisions of the Coastal Patrol had been established in all States of the Commonwealth except in Western Australia and the Northern Territory.
On 1st January, 2010, the Royal Volunteer Coastal Patrol, Australian Volunteer Coast Guard and Volunteer Rescue Association were unified into one organisation, Marine Rescue NSW.
During the years since its foundation, the Broken Bay Unit has provided the radio coverage and rescue facilities for the boating public in the area and assisted in the setting up of three other units as requirements grew. These other units are at Gosford, Hawkesbury and the Radio Centre at Terrey Hills (call sign 'Marine Rescue Sydney').
Members of the Unit also assist the local community by serving on various committees such as the Local Emergency Management Committee and various safety committees. The Unit is, also, available to be called out, by the local Emergency Management Officers, to assist in all community emergencies whenever it can help - even in non-marine situations.
This has been seen, as spoken of by Mr. Arteaga, during the floods that have impacted communities far from Broken Bay. In March 2021 Marine Rescue Broken Bay were going through Taree - deployed to evacuate stranded public along the flooded Manning River. In March 2022 Marine Rescue Broken Bay were activated to assist with flood relief support at Wiseman's Ferry.
It remains a 100% volunteer organisation and still operates Marine Rescue Radio Bases, Rescue Boats, and offers courses and Education in safe boating.
Stay safe around whales during migration season
Marine Rescue NSW is currently reiterating a safety message for all boaters along our coasts as the annual whale migrations commence. In a statement issued on May 20th, MRNSW said;
The migration of humpback whales near NSW coast takes place between May and November each year, with the start of the whale watching season now in full swing. The season can be split into two parts depending on the direction of travel for the majority of whales during this time.
During the northern migration, the Humpbacks head north between May and August mostly to give birth and to mate in the Coral Sea waters. At this time of year, they swim continuously at 5–9 km/h and have regular surface intervals. During the southern migration, the whales head south from mid-August to November to return to the Antarctic feeding ground for the southern hemisphere summer. When they move southwards, they can swim for hours in any direction at a time, with less regular surface intervals.
On the water is one of the best places to witness whales and their annual migration. It is important to understand, however, that whales are wild animals and that whale watching carries with it dangers both to humans, as the observers, and to the whales themselves.
In June last year, two fishermen off Narooma were injured, one critically, when a whale breached and landed on the boat they were travelling in, and each year there are many close encounters.If you’re on a powered or non-powered water vessel such as a boat, surfboard, surf ski or kayak, then you need to maintain a distance of at least 100m from any whale, and 300m if a calf is present.For all water vessels, a distance of between 100m and 300m is established as the ‘caution zone’. In this zone, vessels must travel at a constant slow speed and leave a negligible wake. It’s also important to assess the direction that the whales are traveling in, and then plan the best course of action.
If using a ‘prohibited vessel’ (that is, a vessel that can make fast and erratic movements and not much noise under water such as a Jet Ski or parasail boat), then the distance increases to at least 300m from any whale.
There is also to be no waiting in front of any whale, or approaching from behind.
Following these rules helps ensure your safety out on the water, and ensures that the whales are not distressed by the presence of humans around them.
For more information, visit the National Parks and Wildlife Service: www.nationalparks.nsw.gov.au/wild-about-whales
Log On - Log Off
Log On & Off with Marine Rescue. It’s quick, simple and free. Log On whenever you’re heading out on the water and Log Off when you return. We’ll stand watch. If you don’t Log Off as planned, our volunteers will start searching for you.
Download from the Apple store Download from the Google play store
To Log On, call your Marine Rescue NSW base on VHF Channel 16 or use the free MarineRescue App. You can download the App at the App Store for Apple devices or Google Play for Androids.
You can always Log On, whether you’re out for a morning’s fishing, a day trip around your local area or cruising along the coastline. And it doesn’t matter if you’re on a tinnie, a cruiser, a yacht, a kayak, a canoe or a jet ski.
When you Log On via, our radio operator will ask you for some basic information about your vessel, your destination and contacts.
You’ll enter the same details on your smartphone or other device if you’re using the MarineRescue app. If you don’t Log Off, this information will help us find you, whether you’ve simply forgotten to Log Off when you returned to shore or you’re caught in an emergency and need help fast.
Tell us:
- Your boat registration number
- Where you’re leaving from
- Where you’re heading
- What time you plan to return
- The number of people on board
- Your mobile phone number
If the fish are biting and you decide to stay out longer, simply call the base on VHF Ch 16 or use the MarineRescue App to update your arrival time.
Remember to Log Off when you’re back on shore. If you haven’t let us know you’re back safely, we’ll start to look for you. We’ll try calling you first up, just in case you’ve forgotten to Log Off and headed home with your catch. That’s the best outcome. If we get no answer, we’ll step up the response.
When you Log On via the App, choose the live safety tracking option so your position is updated in our vessel tracking system every 30 minutes. This means that in an emergency, our rescue crews will have a starting point for a search operation, based on your last known position, saving valuable time when minutes can mean the difference between life and death.
.jpg?timestamp=1631952740047)
Skeds
If you’re travelling along the coastline, we encourage you to establish a voyage plan with Marine Rescue NSW and an offshore tracking schedule for you to check in (to ‘sked’) with our bases along your route. This lets us know that you’re travelling safely, on schedule and not in need of emergency help. We’ll keep track of your progress until you safely arrive at your destination in NSW or we hand you over to the marine rescue service in the next State if you’re travelling further north or south.
Preparing to go on the water
As the skipper, you're responsible for safety of the vessel and people on board. Be prepared to keep everyone safe and enjoy time on the water.
Carry enough lifejackets
Wearing a lifejacket can save your life. Make sure your vessel is carrying enough approved lifejackets for everyone on board. They must be in good condition and quick and easy to access.
Always wear a lifejacket while on the water. This means that you'll be more prepared for unexpected events, such as suddenly falling into the water.
The rules for wearing a lifejacket depend on your vessel, where you are and the level of risk.
Know the rules
Before you go out, make sure you know the rules and regulations for using NSW waterways. Key rules to help you stay safe and avoid collisions including:
- keeping a proper lookout for hazards
- knowing who you must give way to and when
- identifying and obeying navigation marks, lights and sounds
- travelling at a safe speed and keeping a safe distance between your vessel and other people, vessels and objects
- staying under the legal limit for alcohol
- knowing the rules for towing a person on the water and towing a trailer on the road.
Check the weather
Always check the weather before you head out. Be aware of warnings, marine conditions, storms, winds, waves and tides. This can make the difference between an enjoyable day and an emergency situation. If in doubt, don't go out.
Let someone know
Before you leave, contact a friend or relative or use your marine radio to log on with a coastal radio base. Tell them:
- where you're going
- your estimated return time
- your vessel details
- how many people are on board.
Take extra care to let someone know if you are going out alone.
Report in if you extend or change your trip.
You can also use the MarineRescue app to log on and log off with Marine Rescue NSW.
Know what to do in an emergency
Being on the water can be unpredictable and dangerous. Be prepared for an emergency or incident, and know what to do and who to contact if you run into trouble.
If you're involved in or witness an incident, you must always stop and give as much help as possible. Depending on the severity of the incident – for example, if someone is injured – you may need to give information to authorities.
Marine Rescue NSW provides important services, including safety education, marine radio communication, and emergency search and rescue services.
Check your vessel
Check your vessel is in good working order, including the engine and lights. Check you have all the correct equipment on board before you leave home or launch your vessel.
If your vessel is registered, check the registration has not expired.
Check your vessel is suitable for the waterways you want to travel on. For example, if the vessel is designed for enclosed waters, it may not suit open waters or along the coast where waves are larger.
Check all hatches can be opened from both the inside and outside of the vessel. Keep all hatches unlocked while the vessel is underway.
Anyone driving your vessel should have the skills and experience to handle the vessel on the waterway you're using.
Have the correct safety equipment
Check you have the correct safety equipment on board for where you're going and your vessel type.
Make sure every item is in good condition and easy to access. Everyone on board should know its location and how to use it.
Plan where you want to go
Plan where you're going and know how long the trip will take. Be aware of any special waterways or designated areas. Check the location of harbours, ports and potential refuges from bad weather.
Take extra care in cold water, especially alpine waters, where your risk of cold shock and hypothermia are increased.
Build your experience by starting out on calm, quiet waterways. Take a more experienced person with you, if possible.
Make sure you have enough fuel. Plan to use a third to get there, a third to get home, and have a third in reserve for unexpected events.
Make sure you have a compass and up-to-date chart (or map) for the waterways you will be using, especially if you're going out on open waters.
You must have a chart or map if you plan to go out on open waters.
Prepare children
If you're taking children out on your vessel:
- Make sure they have a lifejacket and are wearing it when required.
- Teach them emergency procedures and drills, such as what to do if they fall overboard or the vessel capsizes.
- Show them where the safety equipment is, and teach them how to use emergency items, such as the marine radio, EPIRB and flares. Make sure they understand they must only use them in an emergency.
- Show them how to get in and out of dinghies and small boats while keeping them stable.
- Make sure they do not have any part of their body out of the vessel when it's underway.
- Teach them about keeping a proper lookout and a safe distance from other vessels.
- If you're planning to tow, make sure they know the rules for towing people aged under 16.
- Carry everything they need to be prepared for all types of weather.
- Consider the risk of seasickness, especially if you're going out on choppy water.
- Teach children about lifejackets and sunscreen.
Download boating apps
Boating apps give you quick access to helpful information about waterways on your smartphone or tablet. For example, boat ramps, speed zones, navigation aids, weather, special events and safety advice.
Transport for NSW endorses Deckee, available for free via the Apple Store and Google Play. The Deckee app includes maps showing boat ramps, speed zones, navigational aids. It also has access to a live data feed from Transport for NSW that captures alerts, marine notices and campaigns.
Marine Rescue NSW
Marine Rescue NSW is the State’s official volunteer marine rescue service. The Marine Rescue App allows you to register details of your next boating trip.
Photos by MRBB Unit Commander Jimmy Arteaga and Michael Mannington OAM, Community Photography. Report by A J Guesdon.
